Fascia di prezzo: A partire da a

Confronta gli annunci

TRILOCALE AFFACCIATO SULLE COLLINE MARCHIGIANE

€120.000

Descrizione

OFFAGNA – Trilocale con terrazza

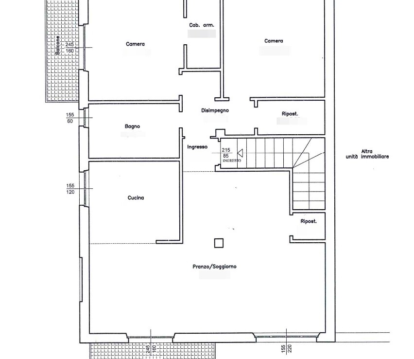
Ad Offagna, proponiamo in vendita in piccola palazzina, appartamento di 100 mq posto al 1° ed ultimo piano senza ascensore affacciato sulla campagna con splendida vista sulle colline marchigiane.

L’immobile è composto da ingresso, ampio soggiorno con balcone e con cucina a vista, due camere matrimoniali di cui una con cabina armadio e balcone, due bagni e due ripostigli.
Da uno dei ripostigli, tramite una botola sul soffitto, si può accedere al tetto attualmente non calpestabile, ma con grandi potenzialità sia di ampliamento per l’appartamento sia per creazione di una bellissima terrazza.

Appartamento ristrutturato nel 2008.

Riscaldamento autonomo.

Dettaglio

Aggiornato su giugno 28, 2024 a 10:58 am

  • ID proprietà: V000173
  • Prezzo: €120.000
  • Superficie proprietà: 100 mq
  • Camere da letto: 2
  • Bagni: 2
  • Anno di costruzione: 1960
  • Tipologia: Appartamento
  • Contratto: Vendita

Proprietà simili

€120.000

Camere da letto: 2Bagni: 2mq: 120

Appartamento, Mansarda

€120.000

Camere da letto: 2Bagni: 2mq: 120

Appartamento, Mansarda


PROPRIETÀ PRECEDENTE

TRILOCALE CON POSTO AUTO

PROSSIMA PROPRIETA'

CANTINE IN CENTRO